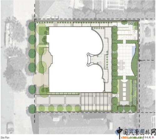
2010ASLA景觀專業獎住宅設計榮譽獎:舊金山住宅
舊金山的這個城市住宅花園,被設想做為日常生活的戶外建筑,最大化這個小空間的影響和經驗。鑒于其較小的規模,花園被認為是沒有屋頂的建筑:既可以從房子的上層欣賞其魅力,也可以作為一個內部享受的寧靜親密的庭院。該設計關注于材料和植物的感知體驗,讓花園更加豐富和美麗。
這是位于舊金山高地上一棟獨棟建筑的院子。獨棟建筑在1990有著名的建筑師設計。在這個建筑上的兩個陽臺上,往下看院子,可以將空間,材料,植物盡收眼底。而且與遠處的城市景觀連成一體,融入城市肌理當中。站在花園內部看,這是一個空間序列豐富的院子,很有次序,當你穿越其中時感觸特別強烈。
編輯:wenweihua
相關閱讀
2015ASLA住宅設計榮譽獎:Mill Creek Ranch
Mill Creek農場坐落于德克薩斯丘陵山區的Medina河谷中,清澈的小溪從兩側流過,環抱著如半島般向前延伸的基地。采用了開放式布局的農場建筑散落在層疊的花園臺地之中,蜿蜒的小路串聯起點綴其中的水、火景元素,綠意愈發濃密,來此的人們皆沉浸于美麗的自然景觀之中。【詳細】
2015ASLA榮譽獎:為成年自閉癥患者打造的全功能小區
中國風景園林網訊 在當下社會,鮮少有合適自閉癥兒童居住的環境,舒適且安全的環境,很多人能夠過上一種有成果的、獨立而充實的生活。Sweetwater全功能住區是為滿足成年自閉癥患者特殊的日常生活需求而設計建造的,是一個具有創新和開拓意義的住宅區模型。【詳細】
3XN首個北美項目 位于多倫多的濱水住宅
丹麥建筑事務所3XN負責設計建造位于多倫多的一棟公寓建筑,這是該事務所首個位于北美的項目。這個消息是由房地產開發商hines和加拿大公寓開發商tridel共同發布的。“多倫多海灣”項目想要沿安大略湖畔建造一個垂直社區,形成“多倫多湖濱”開發項目的核心組成部分。【詳細】
杰弗里·米勒:太平洋坎納公寓景觀設計
中國風景園林網訊 太平洋坎納公寓位于奧克蘭最西部的社區中,占地2.7英畝。其作為城市住宅、花園和工業遺跡的組合是西奧克蘭的一片傳奇歷史的再生街區。這項設計包括了3個內部花園庭院:餐廳庭院,起居室庭院,和Lew Hing花園。【詳細】
