扭院兒——北京傳統四合院改造再生案例
項目位于北京大柵欄地區的排子胡同,原本是一座單進四合院。改造的目的是升級現代生活所需的必要基礎設施,將這處曾經以居住功能為主的傳統小院兒轉變為北京內城一處有吸引力的公共活動場所。
▼扭院兒外貌

▼扭院兒內院

1、規整格局之下的扭動
改變原本四合院的莊重、刻板的印象,營造開放、活躍的院落生活氛圍。基于已有院落格局,利用起伏的地面連接室內外高差并延伸至房屋內部扭曲成為墻和頂,讓內外空間產生新的動態關聯。隱于曲墻之內的是廚房、衛生間、庫房等必要的服務性空間;顯于曲墻之外的會客、餐飲空間與庭院連接成為一個整體。室內外地面均采用灰磚鋪就,院中原有的一顆山楂樹也被保留在扭動的景觀之中。
▼擺脫四合院刻板莊重的印象

▼地面的扭動鋪裝令庭院更加活潑

▼利用起伏的地面連接室內外高差



▼起伏的地面延伸至房屋內部扭曲成為墻和頂


▼廚房隱藏在曲線之內

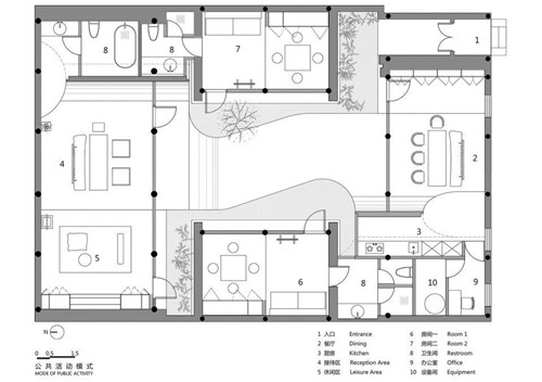
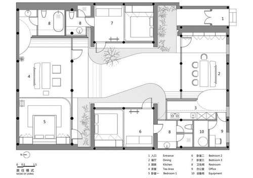
2、使用模式之間的扭轉
小院兒的使用主要作為城市公共活動空間,同時也保留了居住的可能性。四間房屋可被隨時租用來進行休閑、會談、聚會等公共活動;同時也可以做為帶有三間臥室的家庭旅舍。整合式家具用來滿足空間場景的這種彈性切換。東西廂房在原有木框架下嵌入了家具盒子。木質地臺暗藏升降桌面,既可作為茶室空間,也可以作為臥室來使用。北側正房也設有翻床家具墻體和分隔軟簾,同樣可以滿足這種多用需求。
▼正房的休息區模式

▼正房的臥室模式

▼主臥的功能轉換

▼儲藏空間隱藏在廂房的木質家具中

▼廂房的茶室模式

▼廂房的臥室模式

▼廂房的功能轉換

▼洗手間

▼細節



院子是“四合院”這種建筑類型生活樂趣的核心所在。而“扭院兒”就是在維持已有房屋結構不變的條件下,通過局部關系的微調改變院落空間的氣質并滿足多樣的使用,讓傳統小院兒能夠與時俱進的融入到當代城市生活之中。
▼四合院在夜色中煥然新生




▼改造分析圖

▼公共活動模式平面圖

▼居住模式平面圖

▼剖面圖
