這樣震撼人心的商業綜合體就是城市之光!
新加坡的景觀設計
一直有自己的理念
而且在很多方面
都走在了世界的前沿
尤其是在城市的綠化設計方面
走在新加坡
隨處都能看到植物
今天地道君
要帶給大家的案例是位于
新加坡豐樹商業城2期的景觀設計
看看新加坡的景觀設計
是怎么震撼人心的

豐樹商業城的1期
主要是辦公大樓
而2期原先是一些倉庫建筑
為了滿足新加坡
日益增加的商業用地需求
并且滿足商業城
和周圍小區的公共休閑需求
設計團隊決定
用盎然綠色覆蓋這里
代替原來的硬質景觀

考慮到離場地不遠的肯特崗公園
為了呼應公園的生態性
在停車場建筑的樓頂
設計團隊精心打造了
綠意盎然的“大森林”
為了確保
這些“大森林”的正常生長
植物所覆土壤深度為1.8米
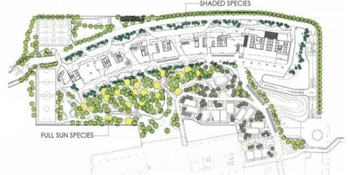
“大森林”總平面圖

同時,植物品種的選擇
也是設計團隊在肯特崗公園
經過相關品種的考察鑒定后
而選擇的
而它們的配置原則
則是模仿自然中
生長的森林生態系統
讓這里成為了真正的大自然
喬木、灌木和地被分布圖

編輯:guoai
相關閱讀
在花園機場中欣賞全球落差最大室內瀑布
4月11日,屢獲世界最佳機場的新加坡樟宜機場再添喜訊。連接3個航站樓、擁有10層樓高、以玻璃、鋁、鋼筋為主材料,內部布滿綠植和自然景觀,兼具商業、休閑娛樂等多功能體【詳細】
羅華端:塑造宜居城市——新加坡的歷程
新加坡今天享有清潔的空氣、干凈的水、清潔的土地、高標準公共衛生,新加坡也是世界上最清潔宜居城市之一。不過早期新加坡的情況并非如此【詳細】
新加坡景觀專業考察 TIERRA事務所拜訪交流
2018年7月16日,由中國風景園林網組織的新加坡園林景觀專業考察團再次啟程。來自上海、廣東、江蘇、山東、四川等地多家園林企業的領導、設計總監、項目經理等參加考察。 在為期一周的考察之旅中,大家將參觀新加坡多處【詳細】
新加坡舉辦圣誕雕塑燈光展(組圖)
在新加坡濱海灣花園,一個小女孩在圣誕雕塑燈光前玩耍。12月1日,新加坡圣誕雕塑燈光展開幕。(新華社/歐新)【詳細】
