可適應多種不同功能的學校——烏干達鄉村小學景觀設計
項目基本信息
項目地點:烏干達
項目面積:1500㎡
竣工時間:2015
設計機構:Studio FH Architects
照片提供:Will Boase
Cotton On基金會是一個澳大利亞非政府組織,他們計劃到2020年在烏干達南部建造20000個新建中、小學校。為了完成這個具有抱負的目標,他們正在進行相關項目的建設。COF鄉村小學項目就是這些項目中的一個。該小學是建在拉卡伊(Rakai)和盧恩戈(Lwengo)兩區附近的偏遠鄉村。每所小學可以容納500名師生,同時可以為教師提供居住的場所。只要有可能,設計師首先是利用現有建筑進行提升改造,然后在根據需要新建新的建筑。目前,已經有三所小學建設完工,無所小學正在建,二十所左右的小學將在未來三年內陸續進行建設。

圖片版權:Will Boase
2013年下半年,Cotton On基金會找到了FH建筑設計事務所,請他們為處在不同環境條件下的地區設計小學校園。在此之前,COF就已經與澳大利亞建筑事務所的羅斯·蘭登(Ross Langdon)一起開始了設計工作。蘭登是FH事務所的好朋友和合作伙伴,但是于2013年9月在內羅畢韋斯特蓋特襲擊中喪生。他留下了小學設計的草圖,COF希望能在此基礎上完成學校的最終設計。

平面圖

圖片版權: Will Boase
建筑的要求可以適應多種不同的功能,房屋的朝向都是朝陽。因為處在熱帶地區,房屋的長軸是沿東西方向的,因此很多地方南北方向都有顯著的高差。這種地形上的差異為教室和通向四個方向的道路設計帶來了一些困難。

圖片版權: Will Boase
因為預算的問題,學校不設計正式的餐廳或者集會大廳,一間教室是多用途的空間。教室中設計了低于地面的圓形的臺階,學生可以在這里就坐。圓形下沉臺階位于兩間教室之間,或者在一間教室中央。兩間相連的教室都有樞軸和滑動板門,如果打開滑動門,那么空間就變大了,可以滿足學校的集會活動。如果關閉滑動門,門板不但可以分割空間,將其分為兩個教室,同時也可以用作黑板。

圖片版權: Will Boase
在建筑材料選用上,主要考慮的是學校建成后要交給烏干達政府管理,由于區域劃分,政府的運營有可能下降。因為財政狀況岌岌可危,很多區都在學校建設中選擇堅固、經久耐用且低維護的材料。水泥鋪裝的地面、粘土磚和不使用玻璃的窗戶都是經常被選用的,這些材料的長期使用狀況很好;馬薩卡附近的butende磚廠生產的多種顏色的粘土磚可以讓建筑看起來不是那么土氣,雖然他們處在黃土裸露的環境。

圖片版權: Will Boase
教室的設計本著最簡約的原則,屋頂要用反射光的材料,所有窗戶都考慮遮陰。為了良好的建筑通風,建筑房高不是很高,上升氣流很容易從屋頂排出。這種建筑樣式在烏干達南部和西部很普遍,在很多歷史上的工業建筑例如咖啡工廠和鋼鐵廠等也都大多采用這種通風方式。白天通風靠屋頂的空隙;此功能允許在惡劣的學習環境下,即使是在暴風雨的條件下,及時為了防風雨關閉了鋼百葉窗,建筑可以依靠屋頂通風系統來解決建筑通風問題。

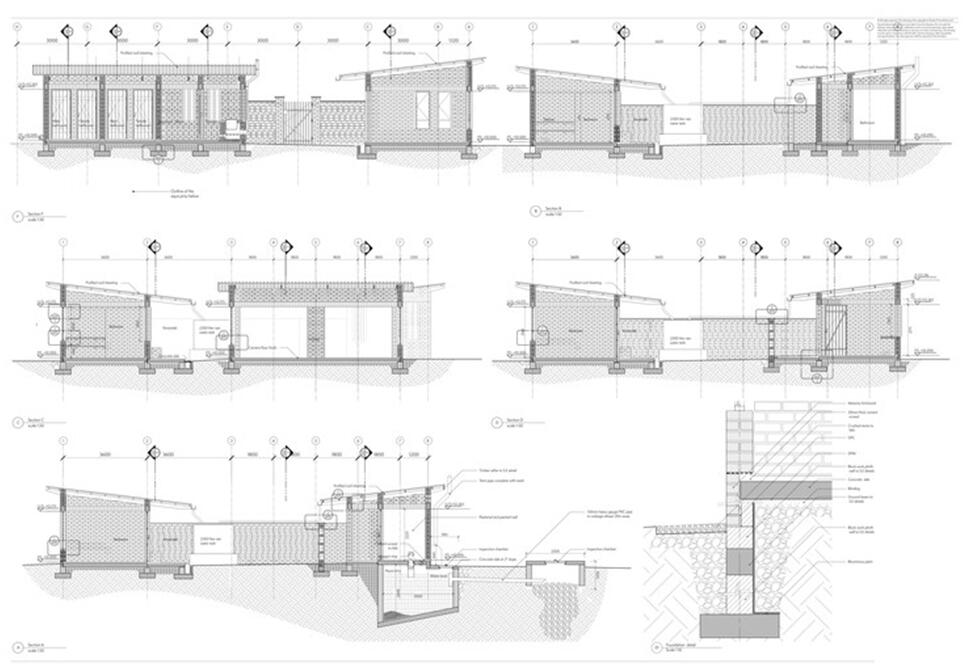
剖面圖
其他小學校建設中適宜采用的技術包括中央雨水收集系統、沼氣池廁所和混合燃料節能灶。

圖片版權:Will Boase

圖片版權:Will Boase

圖片版權: Will Boase

圖片版權: Will Boase

圖片版權: Will Boase

圖片版權: Will Boase

圖片版權: Will Boase

圖片版權: Will Boase

圖片版權: Will Boase

圖片版權: Will Boase

圖片版權:Will Boase

圖片版權: Will Boase

圖片版權: Will Boase

圖片版權: Will Boase

圖片版權: Will Boase

圖片版權: Will Boase

圖片版權: Will Boase

圖片版權: Will Boase

圖片版權:Will Boase

圖片版權: Will Boase

圖片版權: Will Boase

圖片版權: Will Boase

圖片版權: Will Boase

圖片版權: Will Boase

圖片版權: Will Boase

圖片版權: Will Boase

圖片版權: Will Boase

圖片版權: Will Boase

圖片版權: Will Boase
編輯:guoai
相關閱讀
海南首個園林式遺體器官捐獻者紀念園開園
三亞市遺體器官捐獻者紀念園坐落在三亞市荔枝溝路殯葬服務中心內、烈士紀念園旁,于2022年3月開工,2023年2月竣工,占地600余平方米,由三亞市人民政府投資建設【詳細】
江蘇揚州:今年實施五大攻堅行動提升城市綠化
城市道路綠化增綠行動。利用今年春季綠化黃金季節,針對城市道路綠化達標率、林蔭路覆蓋率等指標,全面開展道路綠化增綠提綠補綠,重點對87條道路的行道樹“有綠無蔭、有景少蔭”、綠化品種單一等問題進行整改,形成配置合理、錯落有致、層次清晰的道路綠化景觀【詳細】
北京昌平新城東區將打造濱水商業消費新地標
昌平新城東區位于昌平區南邵鎮,規劃建設用地面積11平方公里,規劃人口12萬,圍繞打造首都北部消費新地標編織街區控規已獲批。未來,昌平新城東區將打造成為京北體驗消費示范區、山水宜居典范城區、高水平綜合服務承載區和智慧產研創新園區【詳細】
南寧園博園舉辦“禮樂園博·南寧花朝盛典”
活動期間,南寧園博園還舉辦了漢服新秀大賽、同袍巡游、及笄成人禮、國風婚禮妝照展示、明制婚禮儀式典禮、六藝游園、書畫體驗、國風集市等精彩紛呈的活動,同時邀請眾多知名國風模特參與表演展示【詳細】



