園冶杯專業獎:長發都市·諸公
皴石為山,以水代墨
畫出行云流水,寫盡諸公深意
給設計賦予一個醉人的靈魂
打造能憶念往昔的理想“公館生活”
項目名稱:長發都市·諸公
項目位置:江蘇南京
項目面積:49,220㎡
業主單位:南京天韻房地產開發有限公司
設計單位:北京順景園林股份有限公司
主設計師:楊華
設計團隊:韓朝祎、楊挺、劉杰、代月、周鑫、燕成征、孫寧、張沛、趙靜、高勝楠、劉亞龍、田靜靜
施工單位:金基尚書里
項目經理:姜偉
項目時間:2015.09-2017.09
項目概述
南京,六朝古都,歷史悠久,文化積淀深厚,氣象宏偉。不管時光如何飛逝流轉,這座城始終保留下韻味深深的記憶和金色的足跡。項目坐擁南京雨花臺風景區,金陵正南,文脈之上,獨享城中心稀缺的森林資源。
項目設計之初就最大限度地保留了現狀樹木,并取宋代畫家范寬的《溪山行旅圖》中一隅,仿云霧繚繞,飛瀑直下的景象,皴石為山,以水代墨,畫出行云流水,寫盡諸公深意,引片片花瓣飛入城墻、街巷、門樓……給設計賦予一個醉人的靈魂?! ?/p>
設計思路
設計理念
項目依山勢而建,享有四種變化的空間層次——覓古城光影,觀藝術人生,品街巷風韻,見森林綠意。設計初始就是想覓回街巷生活的記憶,打造一個生根當代,又能憶念往昔的理想中的“公館生活”。

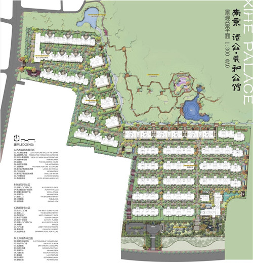
▲總平面圖
空間布局
八街、八巷、十景、 百院 、182個里弄花園。

▲空間布局圖
設計亮點
入口儀式區
夾道的儀仗樹列、密林、水幕石墻,引人們回到凝神靜氣的往昔。

到達廣場區
設計大尺度入口廣場空間;兩側種植烘托出門樓的大氣格調;庭院入口門楣懸掛“天下諸公”銅匾額,點睛這個名流文化的承載之地。

藝術花園
項目場地內最大限度地保留了現有的楊樹,打造出一片楊樹林蔭。折線的道路,以縱向的條石鋪就,深色線條跳躍向前。彎曲的道路,如行云流水,滿鋪的碎石肌理細膩。


樹影斑駁引人一路前行,霧繞馨香間的穿梭,如至仙境。霍然屹立眼前的雕塑,使這氤氳之處頓時變身藝術陳列之所,演繹美的遐思,諸公感悟的華境。

山水花園
此區域景觀融入了山林自然意趣,融入銅元素擋土墻,將現狀種植抬起,最大限度地保留了現狀樹木。可以在這里感受四季變化。




取宋代畫家范寬的《溪山行旅圖》中的一角仿建。這里云輕霧淡,瀑布飛流,石帶皴染意春山,水似潑墨向秋澤,塑造了“行云流水,寫意諸公”的景觀空間。精致的銅帶擋墻析水迭出,護一兩池鏡水,擁三幾組置石,和意共生,給人靜謐之感,讓人迷醉。


將南京市花梅花抽象融入進來,隨處可見。

街巷花園
沿著巷子往深處走,院墻之間的道路曲折迂回,植物穿插其中,樹影婆娑。置身巷中,仿佛穿越時光,讓人不禁聯想當年熙熙攘攘的生活景象。



精裝庭院
院墻內,宅生園中,亦是步步有景。此時的諸公院落,繁花盛開,只待諸公來賞。


編輯:liqing
相關閱讀
海南首個園林式遺體器官捐獻者紀念園開園
三亞市遺體器官捐獻者紀念園坐落在三亞市荔枝溝路殯葬服務中心內、烈士紀念園旁,于2022年3月開工,2023年2月竣工,占地600余平方米,由三亞市人民政府投資建設【詳細】
江蘇揚州:今年實施五大攻堅行動提升城市綠化
城市道路綠化增綠行動。利用今年春季綠化黃金季節,針對城市道路綠化達標率、林蔭路覆蓋率等指標,全面開展道路綠化增綠提綠補綠,重點對87條道路的行道樹“有綠無蔭、有景少蔭”、綠化品種單一等問題進行整改,形成配置合理、錯落有致、層次清晰的道路綠化景觀【詳細】
北京昌平新城東區將打造濱水商業消費新地標
昌平新城東區位于昌平區南邵鎮,規劃建設用地面積11平方公里,規劃人口12萬,圍繞打造首都北部消費新地標編織街區控規已獲批。未來,昌平新城東區將打造成為京北體驗消費示范區、山水宜居典范城區、高水平綜合服務承載區和智慧產研創新園區【詳細】
南寧園博園舉辦“禮樂園博·南寧花朝盛典”
活動期間,南寧園博園還舉辦了漢服新秀大賽、同袍巡游、及笄成人禮、國風婚禮妝照展示、明制婚禮儀式典禮、六藝游園、書畫體驗、國風集市等精彩紛呈的活動,同時邀請眾多知名國風模特參與表演展示【詳細】



