2019園冶杯專業獎|舒適的“盒子”
項目名稱:Cozy Box
項目面積:60㎡
設計單位:Sivak+Partners studio
主創設計:Kyrylo Verbych
監理:Sivak Dmitry
項目概述
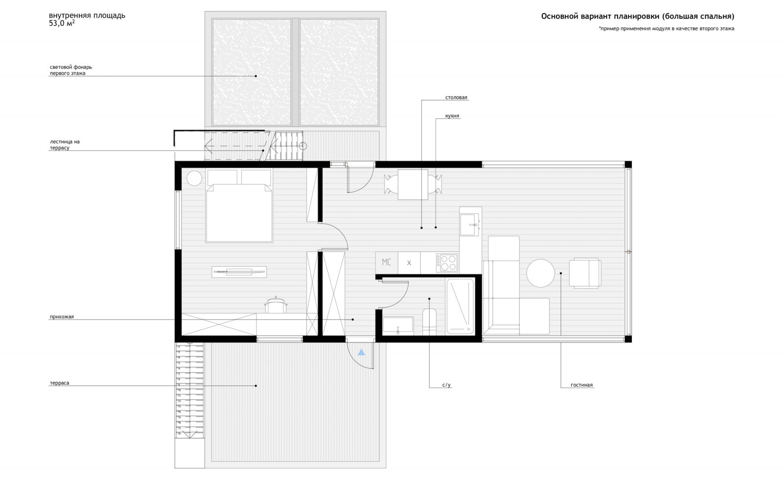
本項目是一個國際建筑公司委托建造的模塊化住宅項目。房屋的設計尺寸與貨物集裝箱的尺寸相同,這使得它可以在沒有任何障礙的情況下,通過飛機或輪船運送到地球上的任何地方。根據居民的數量和年齡,規劃有幾種選擇。模塊的停靠位置允許它們被設計成幾個樓層。立面有不同類型的裝飾和色彩設計方案。可視化效果可以顯示一個應用碳板裝飾立面的實例。
項目的第二個任務則需要住在房子里的住戶來完成——即他想如何使用這個房子。小型模塊化住宅是理想的避暑別墅。設計將內部空間從不必要的分區中解放出來后,廚房-客廳的一部分將更加私密(沙發區),而另一部分用餐區位于室內的露臺上。在幾個選擇的過程中,圍繞就餐區域的整個末端的全景玻璃的想法誕生了。廚房-起居室被帶到了房子的玻璃端,它創造了一種置身于戶外的感覺。

設計說明
本設計允許人把房子安裝在浮筒上。這對于那些生活在水上的城市來說并非非常少見。房屋可以安裝在現成的地基、金屬框架或樁上。
每個塊都可以裝在另一個塊上,如此使得人們可以最多做出三層的結構。頂上的模塊作用就像一個棚子一樣,在它下面的空間人們可以用來停車。模塊的基本配置使用了折疊梯子系統,如此使得屋頂可以被用于階梯。在房主不在家的時候,這些階梯可以被完全折疊起來,使得外人難以進入。
為了應對不同類型的季節,設計師使用了各種不同的能量儲存和供給系統。針對熱天氣,玻璃可以最大程度地用來阻擋太陽照射。而對于冷空氣,則可以在三室雙層玻璃窗的基礎上使用窗戶系統。針對不同的客戶,有著不同玻璃表面的面積和其他技術解決方案。設計中,還可以通過智能玻璃技術調整窗戶的透明度和透光性。太陽能電板可以用太陽能熱板來加熱水。沿著屋頂的周邊,可以安裝雨水收集系統。
這種住宅模塊在工廠的生產就像汽車的生產,客戶可以選擇提供的選項。將施工過程轉移到工廠,可以避免施工現場受到過多的技術因素的影響。














編輯:周星宇
相關閱讀
江蘇揚州:今年實施五大攻堅行動提升城市綠化
城市道路綠化增綠行動。利用今年春季綠化黃金季節,針對城市道路綠化達標率、林蔭路覆蓋率等指標,全面開展道路綠化增綠提綠補綠,重點對87條道路的行道樹“有綠無蔭、有景少蔭”、綠化品種單一等問題進行整改,形成配置合理、錯落有致、層次清晰的道路綠化景觀【詳細】
北京昌平新城東區將打造濱水商業消費新地標
昌平新城東區位于昌平區南邵鎮,規劃建設用地面積11平方公里,規劃人口12萬,圍繞打造首都北部消費新地標編織街區控規已獲批。未來,昌平新城東區將打造成為京北體驗消費示范區、山水宜居典范城區、高水平綜合服務承載區和智慧產研創新園區【詳細】
南寧園博園舉辦“禮樂園博·南寧花朝盛典”
活動期間,南寧園博園還舉辦了漢服新秀大賽、同袍巡游、及笄成人禮、國風婚禮妝照展示、明制婚禮儀式典禮、六藝游園、書畫體驗、國風集市等精彩紛呈的活動,同時邀請眾多知名國風模特參與表演展示【詳細】
成都首屆“最美公園”評選結果出爐
據成都市公園城市建設管理局相關負責人介紹,本次“最美公園”評選范圍包括23個區(市)縣已建成開放的1514個公園,包括綜合公園、口袋公園,還有郊野公園【詳細】



