幸福四口之家的溫馨居所——越南峴港Cuckoo House
項目名稱:Cuckoo House
項目地點:越南,峴港(Da Nang, Vietnam)
竣工年份:2019年
場地面積:297.3㎡
建筑面積:274㎡
建筑層數:一樓、閣樓
建筑設計:Tropical Space Co.,Ltd
建筑師:Nguyen Hai Long, Tran Thi Ngu Ngon, Nguyen Anh Duc, Teresa Tran
The Cuckoo House 是一個四口之家(父母帶兩個孩子)的居所,室內還有一個咖啡吧。項目坐落于越南峴港,2018年由Tropical Space 設計公司負責設計。

咖啡吧
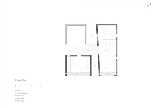
The Cuckoo house包括三個體塊,由緩沖層連接。這三個體塊坐落在另一個矩形體塊上,這個矩形塊被用作支撐上層體塊的基礎。一層是咖啡吧,帶一個庭院,同時室內外聯通。





上面三個空間是這棟房子的獨立功能空間,由沒有完全覆蓋的緩沖層進行連接。




A 區是主臥,兩層空間,上層是臥室,下層是浴室和步入式衣櫥。B區也是兩層,上層是兒童房,下層是客廳。
C區是廚房以及餐廳。





正如習慣上,大部分人們的日常活動是在功能房進行的。Tropical Space設計的分隔墻,被用來圍合空間,并形成緩沖層,鼓勵人們離開他們房間從而聚在一起。這些緩沖層可以被靈活地使用,連接著房子室內與室外的空間,使得家庭的活動既私密又開放,同時允許風穿過房子的轉角,讓熱帶地區的夏天有絲絲涼意。








編輯:李海英
相關閱讀
江蘇揚州:今年實施五大攻堅行動提升城市綠化
城市道路綠化增綠行動。利用今年春季綠化黃金季節,針對城市道路綠化達標率、林蔭路覆蓋率等指標,全面開展道路綠化增綠提綠補綠,重點對87條道路的行道樹“有綠無蔭、有景少蔭”、綠化品種單一等問題進行整改,形成配置合理、錯落有致、層次清晰的道路綠化景觀【詳細】
北京昌平新城東區將打造濱水商業消費新地標
昌平新城東區位于昌平區南邵鎮,規劃建設用地面積11平方公里,規劃人口12萬,圍繞打造首都北部消費新地標編織街區控規已獲批。未來,昌平新城東區將打造成為京北體驗消費示范區、山水宜居典范城區、高水平綜合服務承載區和智慧產研創新園區【詳細】
南寧園博園舉辦“禮樂園博·南寧花朝盛典”
活動期間,南寧園博園還舉辦了漢服新秀大賽、同袍巡游、及笄成人禮、國風婚禮妝照展示、明制婚禮儀式典禮、六藝游園、書畫體驗、國風集市等精彩紛呈的活動,同時邀請眾多知名國風模特參與表演展示【詳細】
成都首屆“最美公園”評選結果出爐
據成都市公園城市建設管理局相關負責人介紹,本次“最美公園”評選范圍包括23個區(市)縣已建成開放的1514個公園,包括綜合公園、口袋公園,還有郊野公園【詳細】



