校園改造(2):挪威奧斯陸MAJORSTUEN學校景觀改造設計
2016-02-26 19:24:00 作者:趙艾/編譯 來源:中國風景園林網 瀏覽次數:
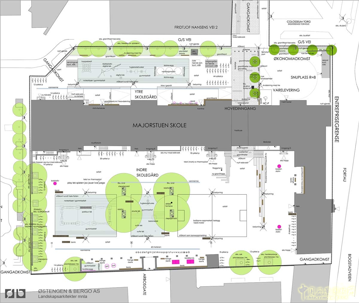
中國風景園林網訊 挪威奧斯陸Majorstuen校園位于奧斯陸市的中心地帶,占據了一個很小的城市空間,可以容納800個學生。校園里有一個5層的教學樓,建于1908年,因此歷史氛圍濃厚。學校內的全部設施具有保護價值。設計師的主要目標,是在學校建立一個位于中心的校門入口。這樣一來,可以將周邊的戶外空間與校園聯系起來,使得學校有限的空間得到最大化的利用,供師生活動或休息。
景觀設計:Østengen&Bergo景觀設計事務所
項目地點:挪威奧斯陸
委托方:奧斯陸Undervisningsbygg公司
建筑設計:ArkitektkontoretGasa建筑事務所
項目類型:中小學校
完成年份:2014年


平面圖
編輯:zhaoai
凡注明“風景園林網”的所有文章、項目案例等內容,版權歸屬本網,未經本網授權不得轉載、摘編或利用其它方式使用上述作品。已經本網授權者,應在授權范圍內使用,并注明“來源:風景園林網”。違反上述聲明者,本網將追究其相關法律責任。
相關閱讀
園林水系池岸景觀設計
近來,環境景觀越來越注重水體,無水不靈;有的房地產公司還提出戶戶開門臨水的要求。而在實際操作上,水面邊岸則是易被忽視且不易設計、施工好的項目。其所占投資比例不菲,值得斟酌探討。【詳細】
成功的景觀設計輕松拯救空間顏值
近年來,人們對生活質量和生活環境的要求在不斷的提升,對于自然的向往也越來越強烈。【詳細】
