2017園冶杯專業獎:石家莊職業技術學院環境提升改造
這是大學校園改造的一次創新
不只注重解決功能問題
而是以人文環境的提升為目標
以生態造景和文化造景為原則
將大學精神融入景觀設計之中
創作具有山水特色與文化結合的校園氛圍
孕育著夢想
流淌著青春活力
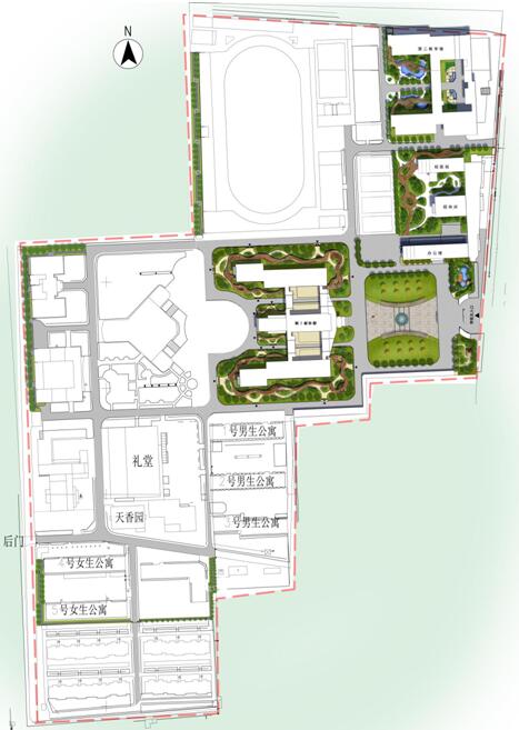
項目名稱:石家莊職業技術學院環境提升改造
項目地址:河北石家莊
項目面積:28700㎡
設計時間:2017年5月
業主單位:石家莊職業技術學院
設計單位:河北潤秀園林景觀設計有限公司
主設計師:孫學凱、呂民龍
項目定位
本設計將校園景觀看作為一個功能復雜的綜合體,擔負著積淀學校歷史、傳統、文化和社會價值取向等重任。不只注重解決功能問題,而是以人文環境的提升為目標,以人文主義為立足點努力體現大學精神,將大學精神融入景觀設計之中,通過它的物化,以具體的形象表達思想,傳達豐富的文化內涵。


設計理念
大學校園可以看作一個社會、一個城市的縮影,它兼具生活、工作、學習、游憩、居住、產業等多種功能。本設計旨在重塑校園的慢行系統,構建山水人文的大學精神。大學是傳承中國優秀文化的重要載體,傳統文化的精髓應用在景觀設計中主要體現在人與社會的秩序及人與自然的秩序。
設計愿景
做到生境、畫境、意境園林三境。
設計思路
在設計中我們力求擺脫傳統校園的空間語言模式,最大限度的表現形式、功能的特征和文化脈絡,將創作具有山水特色與文化結合的校園形態作為思考的起點,以生態造景和文化造景為原則,充分研究石職院的校史、校訓等校園文化,將其融入到校園環境之中,使校園環境充滿人文氣息。
該設計形式靈感來源于"曲水流觴",在中國古代"曲水流觴"是上巳節中派生出來的一種習俗,后來發展成為文人墨客詩酒唱酬的一種雅事。將該寓意與校園文化相結合,更完美的體現出文化傳承的真諦。
設計中的流線型廊架貫穿整個慢行步道,廊架上局部遮擋,有虛實變化,兼具風雨連廊的功能。慢行步道結合游憩空間,閱讀空間,夜間整個棚架發出點點星光,創造出一種溫馨靜謐的讀書氛圍;在這天與地之間是人的活動和休憩空間和校園文化的展示空間。
自古山水情節與人文精神就有非常高的契合度,"仁者樂山,智者樂水"的山水景觀將是最適合大學校園氛圍的景觀主題。
1.主入口兩側游園


2.一號教學樓周邊










3、二號教學樓周邊


編輯:guoai
相關閱讀
石家莊打造滹沱河上核心景觀區 設9湖20景
  近日,《滹沱河生態修復工程規劃暨沿線地區綜合提升規劃》編制完成,《規劃》明確,要實施【詳細】
石家莊藍天行動 建設生態化宜居城市
“藍天”行動打贏藍天保衛戰報告中提出,未來五年,我市將堅持科學治霾、協同治霾、鐵腕治霾,通過加強頂層設計、調整結構、減少排放等措施,力促空氣質量明顯改善;到2021年,PM2.5濃度降至每立方米68微克以下。 對報告中提出的目標任務和措施,來自我市各行各業特【詳細】
石家莊市全面執行綠色建筑標準
從近日召開的2017年石家莊市建筑節能與綠色建筑工作會上獲悉,今年5月1日起,該市將全面執行綠色建筑標準,降低建筑使用能耗,提高建筑品質,推動生態文明建設。【詳細】
石家莊市園林部門發布省會水系賞花地圖
“水靜待花落,花卻隨風飛。”今春,這一美景將會在石家莊哪里出現?3月24日,市園林部門發布了省會水系賞花地圖。【詳細】